Xalet urb. E. Serra #3
DATOS
Ref: 10-328
Chalet #3 a urbanització E. Serra
Dirección: Urb. E. Serra (Ver en el mapa)
Localización : Escaldes-Engordany
EQUIPO
Promotor: particular
Arquitectura: Marc CALVET SALA
Estructura: GET BEAL DESCRIPCIÓN
Categoría: Vivienda unifamiliar
Año inicio: 2010
Año final: 2012
Usos: Vivienda
Alturas estructura: -2 / +3
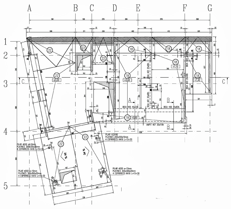
ESTRUCTURA
Superficie construida estructura: 2.214m2
Sostenimiento: pantalla anclada de micropilotes
Cimentación: mixta superficial - profunda
Estructura: hormigón armado

