Puiet  
      DATOS
Ref: 01-076
        Complejo El Puiet - Centre de congresos de Ordino  
  
          Dirección: c. del Puiet (Ver en el mapa) 
        Localización : Ordino
EQUIPO
Promotor: Comú d'Ordino
        Arquitectura: Elisabet FAURA PAVIA, Esther PASCAL RIERA, Gerard VECIANA MEMBRADO  
  
          Estructura: GET BEAL        DESCRIPCIÓN
Categoría: Equipamientos públicos
Año inicio: 2001
Año final: 2003
Usos: Aparcamiento, centro de congresos, guarderia y vivienda
Alturas estructura: -2 / +2
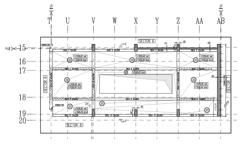
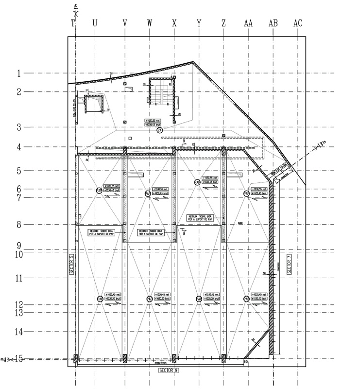
ESTRUCTURA
Superficie construida estructura: 9.654m2
Sostenimiento: pantallas dobles de jet grouting ancladas por tirantes provisionales
Cimentación: superficial
Estructura: hormigón armado
 
  
