Borda del Jaile
DATOS
Ref: 98-017/024/025/032 99-048 00-060 02-106/108 06-240
Conjunto residencial y pasarela de la Borda del Jaile
Dirección: Aixovall (Ver en el mapa)
Localización : Sant Julià de Lòria
EQUIPO
Promotor: SOLITER, S.L.
Arquitectura: Josep PUBILL ARMENGOL
Estructura: GET BEAL DESCRIPCIÓN
Categoría: Vivienda plurifamiliar
Año inicio: 1998
Año final: 2011
Usos: Aparcamiento y viviendas
Alturas estructura: -2 / +7
ESTRUCTURA
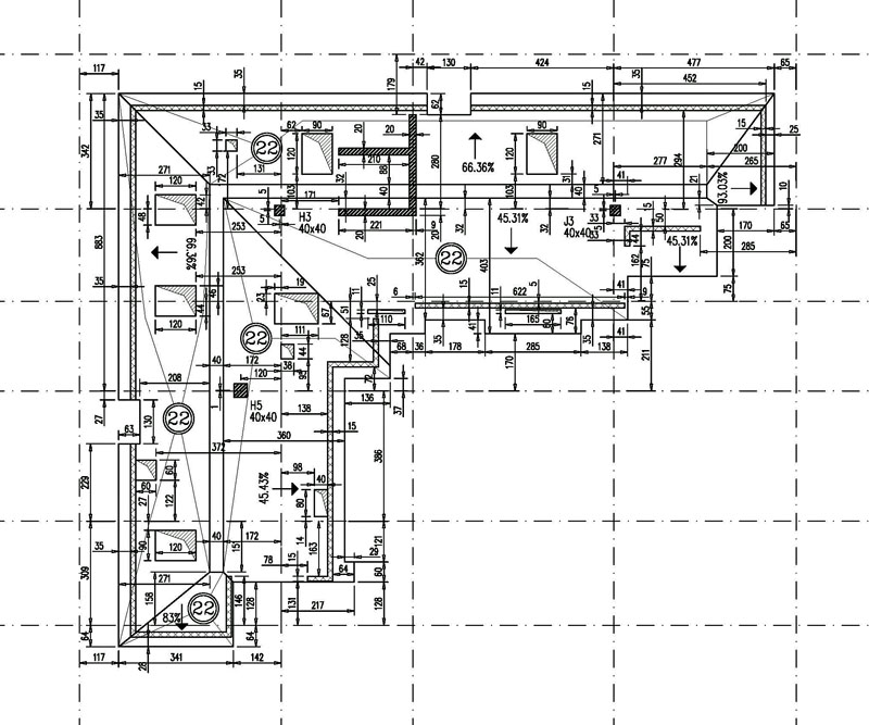
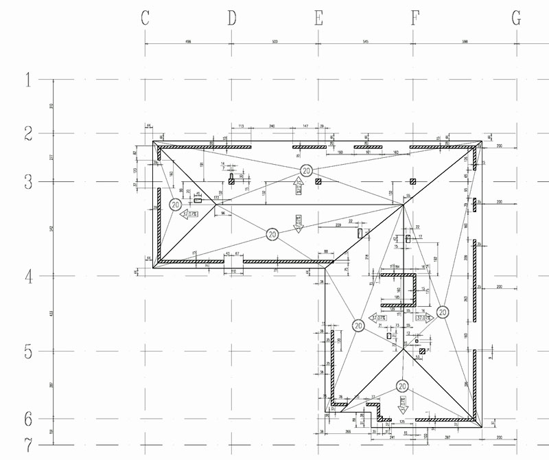
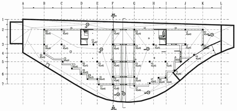
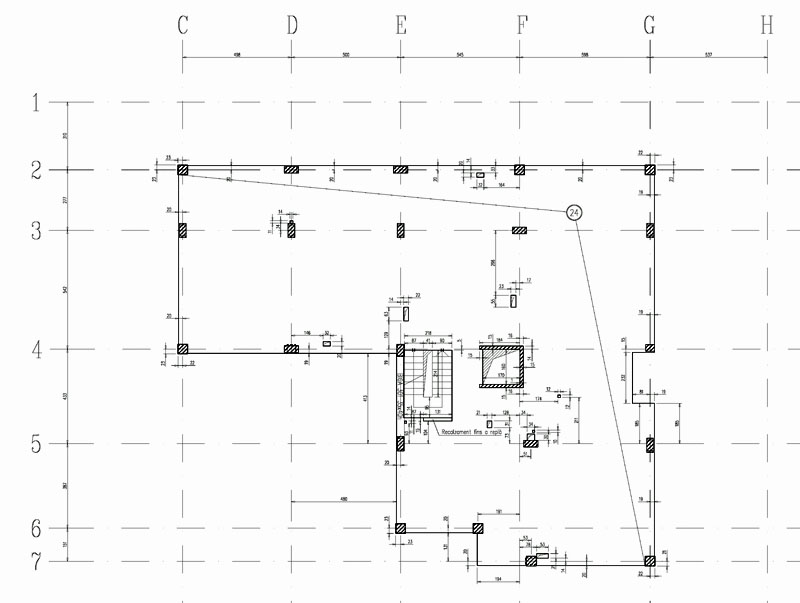
Superficie construida estructura: 28.941m2
Cimentación: losa maciza de hormigón
Estructura: hormigón armado

