Devesa d´Incles
DATA
Ref: 03-126
La Devesa d'Incles building
Address: Ctra. General 2 (See on map)
Location : Canillo
TEAM
Client: private owner
Architecture: Xavier ORTEU RIBA
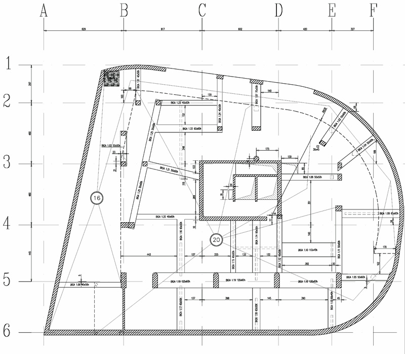
Structure: GET BEAL DESCRIPTION
Category: Multi-family residential
Start Year: 2003
End year: 2006
Uses: Parking, housing
Levels of structure: -2 / +5
STRUCTURE
Surface of built structure: 3.591m2
Earth retaining structure: anchored micropiles walls
Foundations: thick concrete slab
Structure: reinforced concrete

