Prat de les Granotes
DATA
Ref: 04-181
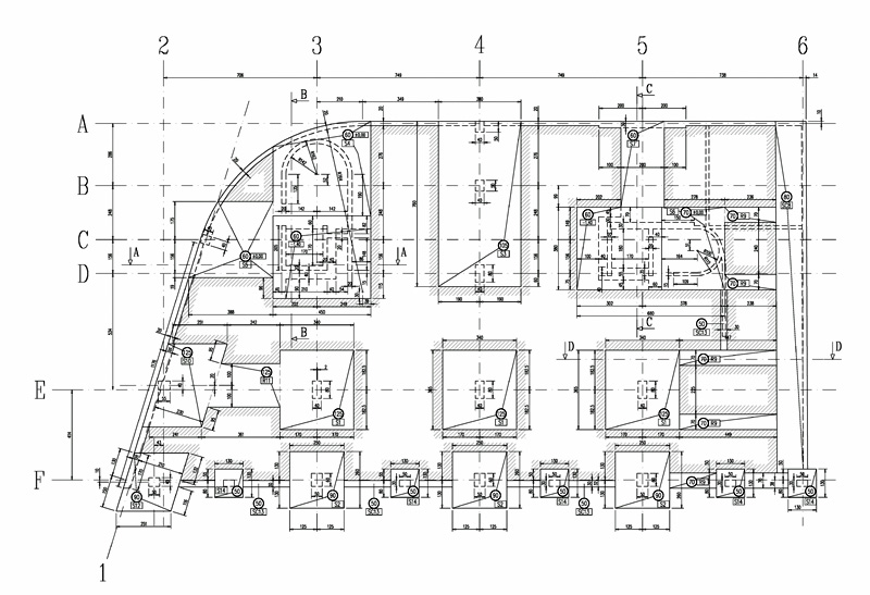
Prat de les Granotes building
Address: C. del Prat de la Creu (See on map)
Location : Andorra la Vella
TEAM
Client: private owner
Architecture: Pere AIXÀS ESPAR
Structure: Yves SERRA & GET BEAL DESCRIPTION
Category: Multi-family residential
Start Year: 2004
End year: 2006
Uses: Parking, commercial and housing
Levels of structure: -3 / +7
STRUCTURE
Surface of built structure: 5.565m2
Foundations: shallow
Structure: reinforced concrete

