Xalet Els Oriosos
DATA
Ref: 10-330
House at Els Oriosos
Address: Els Oriosos, Anyós (See on map)
Location : La Massana
TEAM
Client: private owner
Architecture: Xavier ALEIX PALOU
Structure: GET BEAL DESCRIPTION
Category: Family housing
Start Year: 2010
End year: 2011
Uses: Housing
Levels of structure: 0 / +4
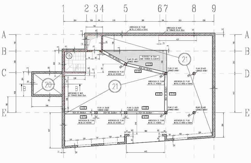
STRUCTURE
Surface of built structure: 839m2
Foundations: thick concrete slab
Structure: reinforced concrete

