Puiet
DATA
Ref: 01-076
El Puiet complex - Ordino Congress Center
Address: c. del Puiet (See on map)
Location : Ordino
TEAM
Client: Comú d'Ordino
Architecture: Elisabet FAURA PAVIA, Esther PASCAL RIERA, Gerard VECIANA MEMBRADO
Structure: GET BEAL DESCRIPTION
Category: Public buildings
Start Year: 2001
End year: 2003
Uses: Parking, congress center, kindergarten and housing
Levels of structure: -2 / +2
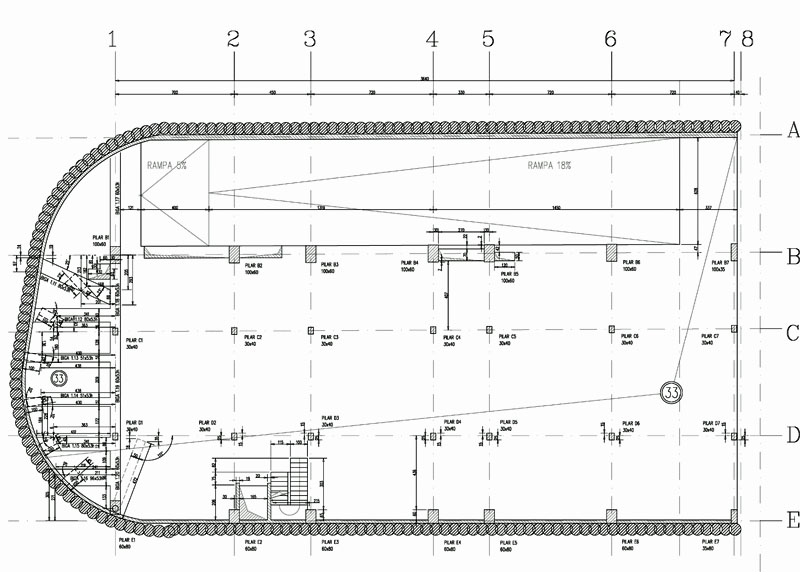
STRUCTURE
Surface of built structure: 9.654m2
Earth retaining structure: doble jet grouting walls suported by provisional anchorages
Foundations: shallow
Structure: reinforced concrete

