Fener 9
DADES
Ref: 04-172
Edifici av. del Fener núm. 9
Adreça: Av. del Fener (Veure al mapa)
Localització : Escaldes-Engordany
EQUIP
Promotor: particulars
Arquitectura: Pere AIXÀS ESPAR, Joan CASAMAJOR PATAU
Estructura: Yves SERRA & GET BEAL DESCRIPCIÓ
Categoria: Habitatge plurifamiliar
Any inici: 2004
Any final: 2007
Usos: Aparcament, comercial i habitatges
Alçades estructura: -3 / +7
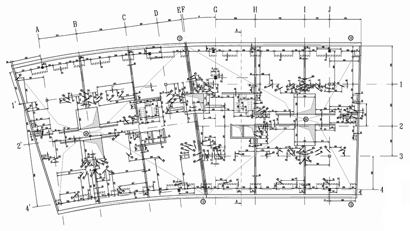
ESTRUCTURA
Superfície construida estructura: 15.065m2
Sosteniment: pantalles de jet grouting
Fonaments: llosa massissa de formigó
Estructura: formigó armat

