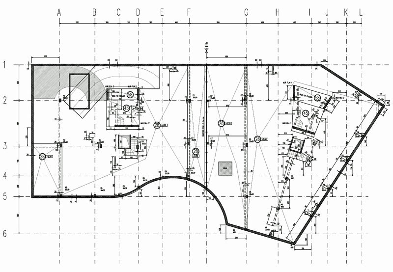
Les Massanelles
DADES
Ref: 03-137
Edificis a Les Massanelles
Adreça: La Cortinada (Veure al mapa)
Localització : Ordino
EQUIP
Promotor: particulars
Arquitectura: Xavier ORTEU RIBA
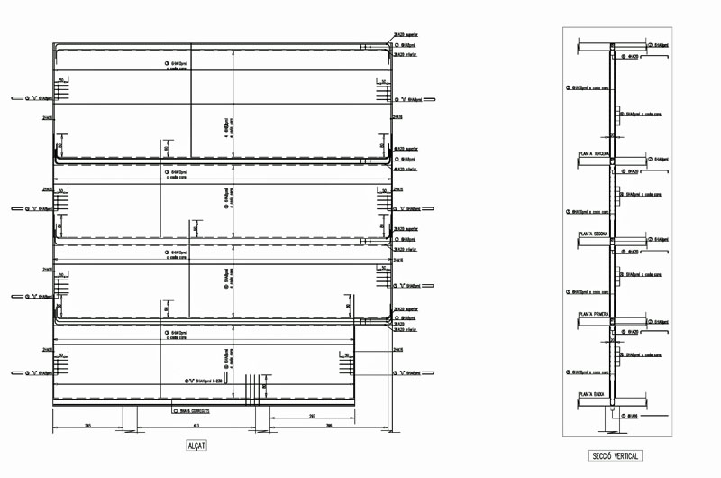
Estructura: GET BEAL DESCRIPCIÓ
Categoria: Habitatge plurifamiliar
Any inici: 2003
Any final: 2007
Usos: Aparcament i habitatges
Alçades estructura: -1 / +4
ESTRUCTURA
Superfície construida estructura: 5.236m2
Fonaments: superficials
Estructura: formigó armat

